Details

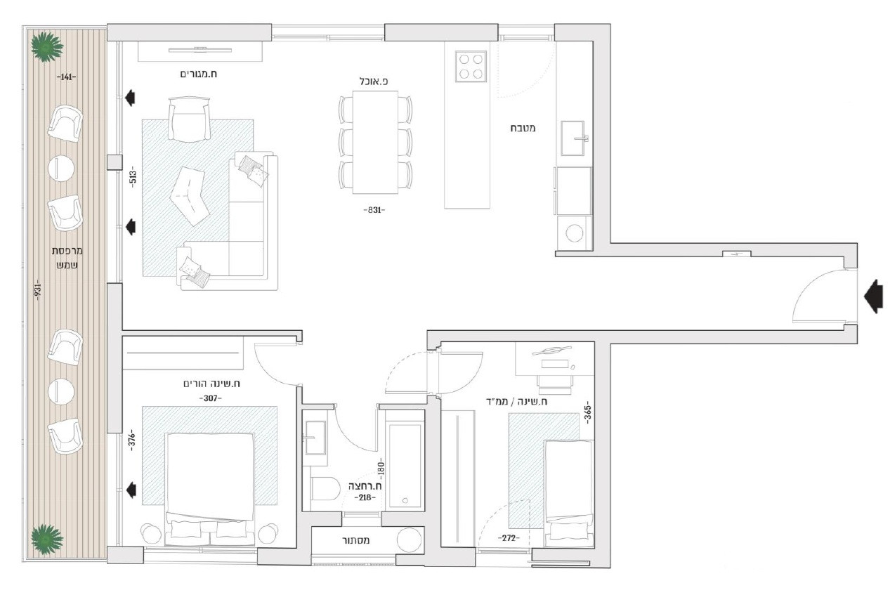
89 Sqm

3 rooms

1e floor

Type :

Apartment

floor :

1

Reference:

828 -IBL- 87

Surface :

89 Sqm

Number of rooms :

3

Orientation :

Terrace

Backyard

Parking

Basement

A/C

2 toilets

2 bathrooms

Description
Exceptional project on shenkin street - high-end 2 to 5-room apartments

A rare and prestigious project in a detached building with only 23 exclusive apartments. Premium location in the heart of legendary shenkin street, a stone's throw from carmel market, rothschild boulevard, and the beaches. Bright and spacious 2- to 5-room apartments, some with large terraces and private parking. Architecture by yaniv prado, combining contemporary design with the authentic tel aviv spirit. Construction in progress

Start of building : N/C
Delivery : N/C
Other properties in this program
Losky Neve Tzedek
Similar properties nearby
  • 6.660.000
    Apartment 3 rooms , 68 Sqm
    Tel Aviv , Lev Tel-Aviv
    See more »
Already sold in the neighborhood
  • 3.850.000
    Apartment 2 rooms , 64 Sqm
    Tel Aviv , Lev Tel-Aviv
    SOLD in 01/09/2025
  • 6.850.000
    Apartment 4 rooms , 90 Sqm
    Tel Aviv , Lev Tel-Aviv
    SOLD in 02/09/2025
  • 6.850.000
    Apartment 4 rooms , 90 Sqm
    Tel Aviv , Lev Tel-Aviv
    SOLD in 30/07/2025
  • 6.850.000
    Apartment 4 rooms , 90 Sqm
    Tel Aviv , Lev Tel-Aviv
    SOLD in 30/07/2025